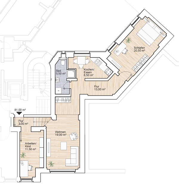
Wohnung 1.1.1 -
3-Raumwohnung
Die Wohnung ist als Split-Level gegliedert und verläuft über zwei Ebenen. Die Wohneinheit bietet ein lichtdurchflutetes Wohnzimmer mit großem Panoramafenster und ein großes ruhiges Schlafzimmer zum Innenhof. Das separate Zimmer im unteren Bereich mit Massivholzeinbau als Hochbett bietet sich z.B. als Kinderzimmer an. Vom Flur erreicht man außerdem das geflieste Tageslichtbad und die Küche mit Platz für einen Esstisch. Die Wohnung ist durchgehend mit hochwertigen Massivparkettböden ausgestattet.
Die Wohnung ist derzeit leider schon vergeben, wir hoffen Sie finden auch bei den anderen verfügbaren Wohnungen eine die Ihnen zusagt.
| Daten | |
|---|---|
| Zimmer | 3-Raum |
| Wohnzimmer, Schlafzimmer, Arbeitszimmer, Wohnküche, Flur, Bad | |
| Wohnfläche | 81 m² |
| Gebäudeteil | Vorderhaus |
| Etage | Erdgeschoss/Hochparterre |
| Orientierung | Front und Innenhof, Links |
| Ausstattung, Besonderheiten | Wohnung auf zwei Ebenen, Waschmaschinenanschluss, Bad mit Fenster und Fußbodenheizung, Massivparkett, digitales Satellitenfernsehen, DSL möglich |
| Verfügbarkeit | vermietet |