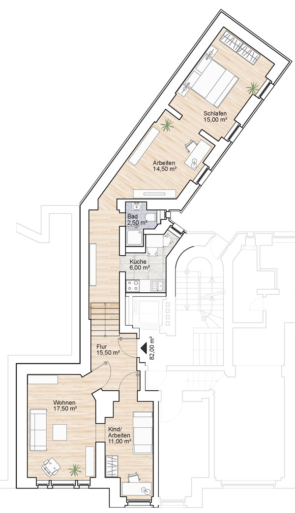
Wohnung 1.1.2 -
3,5-Raumwohnung
Die Wohnung ist als Split-Level gegliedert und verläuft über zwei Ebenen. Auf der unteren Ebene befinden sich zwei zusammenhängende Räume mit Stuck und repräsentativen Fenster, die sich als Wohn- und Arbeitszimmer anbieten. Die zum ruhigen Hof gelegenen Zimmer auf der oberen Ebene, können als Schlafzimmer und zur konzentrierten Arbeit genutzt werden. Die Wohnung bietet ein kleines aber funktionales Tageslichtbad mit Fußbodenheizung und eine gemütliche Küche mit Waschmaschinenanschluss. Die Wohnung ist durchgehend mit hochwertigen Massivparkettböden ausgestattet. Die Wohnung eignet sich auch ideal als Zweier-WG, da der obere- und untere Bereich nahezu gleich groß sind. Durch die Raumaufteilung kann die Wohnung auch als Büro für kleine Unternehmen genutzt werden – entweder vollständig mit 4 Büroräumen oder in gemischter Nutzung mit Privatbereich im oberen Bereich und 2 Büroräumen im unteren Bereich.
Die Wohnung ist derzeit leider schon vergeben, wir hoffen Sie finden auch bei den anderen verfügbaren Wohnungen eine die Ihnen zusagt.
| Daten | |
|---|---|
| Zimmer | 3,5-Raum |
| 3,5 Räume, Küche, Flur, Bad | |
| Wohnfläche | 82 m² |
| Gebäudeteil | Vorderhaus |
| Etage | Erdgeschoss/Hochparterre |
| Orientierung | Front und Innenhof, Rechts |
| Ausstattung, Besonderheiten | Bad mit Fußbodenheizung, Parkett, Split-Level, digitales Satellitenfernsehen, DSL möglich |
| Verfügbarkeit | vermietet |