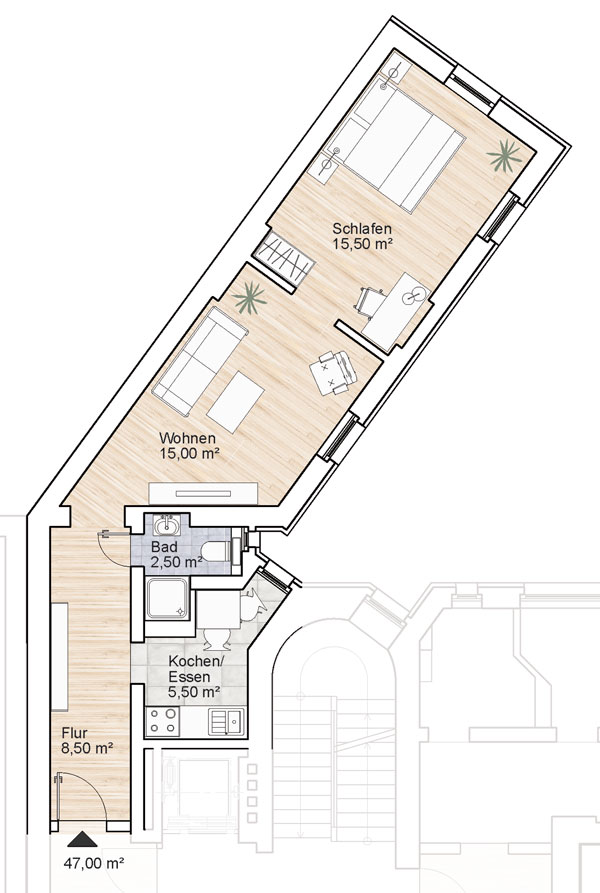
Wohnung 1.2.4 -
2-Raumwohnung
Die ruhige Lage zum Innenhof bietet eine idyllische Wohnqualität und zentrale Lage zugleich. Der geräumige Flur bietet Raum für einen Schrank mit zusätzlichen Stauraum. Über den Flur sind Küche mit Einbauküche, Tageslichtbad sowie Wohnbereich erreichbar. An den Wohnbereich schließt sich der große Schlafbereich an - die Wohnung ist deswegen nicht WG geeignet. Die Räume sind mit hochwertigem Parkettboden ausgestattet.
Die Wohnung ist derzeit leider schon vergeben, wir hoffen Sie finden auch bei den anderen verfügbaren Wohnungen eine die Ihnen zusagt.
| Daten | |
|---|---|
| Zimmer | 2-Raum |
| Wohnzimmer, Schlafzimmer, Küche, Bad, Flur | |
| Wohnfläche | 47 m² |
| Gebäudeteil | Vorderhaus |
| Etage | 1. Obergeschoss |
| Orientierung | Innenhof, Rechts |
| Ausstattung, Besonderheiten | Parkett, Bad mit Fenster und Fußbodenheizung, digitales Satellitenfernsehen, DSL möglich, Aufzug |
| Verfügbarkeit | vermietet |