Wohnung 1.4.3 -
1,5-Raumwohnung
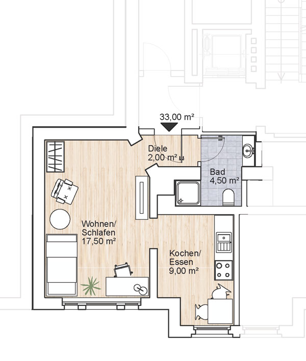
In der effektiv geschnittenen Wohnung gelangt man von der Diele zum Wohn- und Schlafbereich sowie zum modern gefliesten Bad mit Dusche. Das Bad ist mit Fußbodenheizung und Handtuchheizkörper ausgestattet. Vom Wohn-/Schlafbereich mit seinen imposanten Fenstern erreicht man die geräumige Wohnküche mit Einbauküche. Die Räume sind mit hochwertigem Parkettboden ausgestattet.
Die Wohnung ist derzeit leider schon vergeben, wir hoffen Sie finden auch bei den anderen verfügbaren Wohnungen eine die Ihnen zusagt.
| Daten | |
|---|---|
| Zimmer | 1,5-Raum |
| Wohn-/Schlafzimmer, Wohnküche, Bad | |
| Wohnfläche | 33 m² |
| Gebäudeteil | Vorderhaus |
| Etage | 3. Obergeschoss |
| Orientierung | Front, Rechts |
| Ausstattung, Besonderheiten | Einbauküche, Parkett, Bad mit Fußbodenheizung, digitales Satellitenfernsehen, DSL möglich, Aufzug |
| Verfügbarkeit | vermietet |